Negozio in vendita

Monterotondo, Locale Commerciale Via San Martino - Santa Maria
€ 369.000
Prezzo aggiornato
1 locale 1 locale
377 Mq 377 Mq
2 bagni 2 bagni

Negozio in vendita

Monterotondo, Locale Commerciale Via San Martino - Santa Maria

Descrizione annuncio

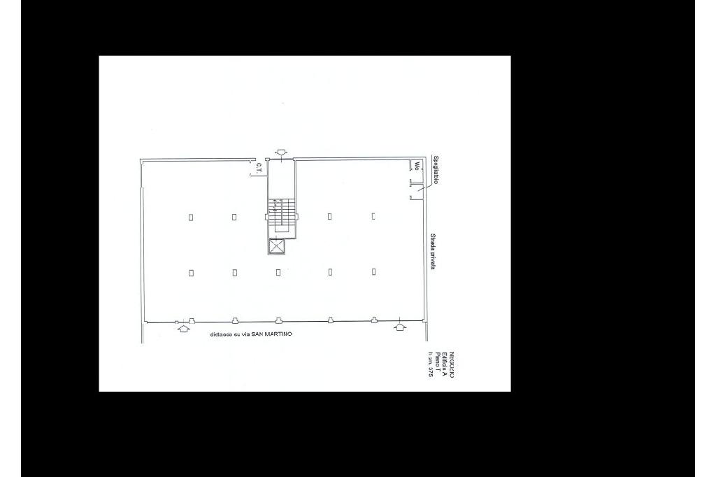
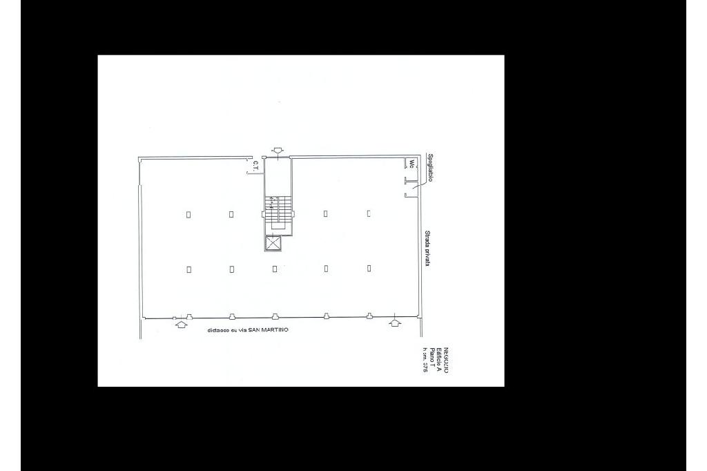
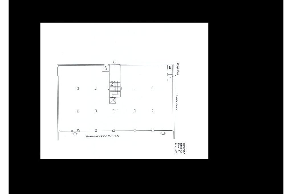
Situato su una delle vie principali della cittadina di Monterotondo, proponiamo in vendita Locale Commerciale C/1 ad uso investimento con 6 vetrine espositive fronte strada e parcheggio privato.

L’immobile collocato in via San Martino, ha una superficie totale commerciale di 377 mq, ed è venduto già locato con una rendita annuale di 30.000 euro.

Il locale internamente è, ad oggi, diviso in due ambienti attraverso dei tramezzi in cartongesso.

Il locale gode di un’ottima posizione fronte strada con un parcheggio antistante privato di circa 300 mq ad uso esclusivo dei clienti dell’attività.

Lo stato interno dell’immobile è buono ed è fornito di impianto elettrico con lampade a neon, inoltre è presente l’impianto idraulico con acqua e fogna diretta.

Gli infissi esterni sono costituiti da una serranda avvolgibile manuale con maglia tradizionale a tubo tondo e tutte le vetrine sono in doppio vetro/alluminio.

Il locale commerciale è soggetto a spese condominiali con importo annuo di circa 300 euro.

Uno degli aspetti positivi di questa proprietà è senza dubbio che esso ha già un affittuario all’interno, un ottimo investimento per chi sta cercando locali da mettere a reddito e non per utilizzo personale. Altri aspetti positivi sono il grande parcheggio privato ad uso esclusivo, una vera e propria rarità per questa zona di Monterotondo.

Il locale si trova inoltre in una zona di passaggio e trafficata di Monterotondo, piena di esercizi commerciali ed a soli 10 minuti dalla stazione ferroviaria di Monterotondo Scalo.

Cerchi un Locale nel quale investire a Monterotondo?

Noi abbiamo quello che stavi cercando.

Classe Energetica: G IPE: 250.46 Kwh/mq

Mostra tutto

Nelle vicinanze

Trasporto pubblico Trasporto pubblico
Monterotondo
Monterotondo
1,6 Km
Trasporto pubblico
1,7 Km
Scuole Scuole
Scuole
790 m
I.T.I.S. G. Cardano
810 m
Liceo Classico Catullo
1,0 Km
Farmacia Farmacia
APM 4
510 m
APM 1
810 m
APM 2
1,1 Km
Farmacia Gesù Operaio
1,1 Km
Farmacia Comunale 3
1,5 Km
Ospedali Ospedali
Pronto Soccorso Ospedale
1,2 Km
Ospedale "SS Gonfalone"
1,3 Km
Supermercati Supermercati
Carrefour express
20 m
CONAD
590 m
Conad City
790 m
MD
830 m
Carrefour Express
1,0 Km
Negozi Negozi
Fornodolcecaffè
810 m
La Forneria
1,2 Km
Mr. T-shirt
1,3 Km
VestiBimbi
2,6 Km
Gruppo Clark
2,6 Km
Bar Bar
Kalacta
920 m
Bar Roma
1,0 Km
Ristoranti Ristoranti
Kotuki
320 m
Ristoranti
640 m
Pizza Rotondo
780 m
Dei Leoni
910 m
Kalapà Specialità greche
1,0 Km
Mostra tutto

Caratteristiche

Rif.:
60968456
Piano:
Terra di 4
Totale piani:
4
Posti auto:
20
Condizionamento:
Predisposizione impianto
Ascensore:
No
Mostra tutto
Prezzo Prezzo
€ 369.000
Rata mutuo Rata mutuo
€ 1.760 / mese
Spese annue Spese annue
€ 300
Proponi il tuo prezzoProponi il tuo prezzo

Classe Energetica

G
G
G
G
G
G
G
G
G
EP globale non rinnovabile:
250.46 kW h/m² anno
EP globale rinnovabile:
0.00 kW h/m² anno
EP invernale del fabbricato:
EP estiva del fabbricato:
Anno di costruzione:
1975
Riscaldamento:
Assente

Prezzo ridotto di €1 (3%%)

Ti interessa visionare l'immobile?

Fissa un appuntamento  Fissa un appuntamento

Richiedi informazioni

Clicca su Leggi per aprire l'informativa
* Questi campi sono obbligatori

Calcola il tuo mutuo

Semplice e senza impegno
Anticipo

( % )
Mutuo

( % )

pochi semplici passi

inserisci i tuoi dati
Questionario completato
Grazie per aver richiesto un appuntamento senza impegno con un nostro Consulente del Credito e Assicurativo.

Hai inserito correttamente tutti i dati necessari e a breve riceverai una e-mail con un link da convalidare per inviare i tuoi dati.
Affiliato
Gs Monterotondo Srl
Via Edmondo Riva, 61/A-B-C-D 00015 Monterotondo (RM)
Via Edmondo Riva, 61/A-B-C-D 00015 Monterotondo (RM)
Zona: Monterotondo
Mostra su mappa
Orari: Lunedì- Venerdì 8:30 - 13:00 15:00 - 19:30 Sabato 8:30 - 17:30
Affiliato
Gs Monterotondo Srl
Via Edmondo Riva, 61/A-B-C-D 00015 Monterotondo (RM)

2026 Tecnocasa Franchising S.p.A. - P. IVA 08365160152 - Via Monte Bianco 60/A 20089 Rozzano (MI). Ogni agenzia ha un proprio titolare ed è autonoma. Privacy policy | Policy utilizzo | Cookie policy